モデュロール祐天寺
一人暮らしにちょうどいいモダンリビング
物件概要
地図
- 設備
-
オートロック / モニター付インターホン / 宅配ボックス / 敷地内専用ゴミ置き場 /
エアコン / 24時間微風換気システム / ピクチャーレール / 2口ガスコンロシステムキッチン / 浴室換気乾燥機 / 独立洗面台 / 室内洗濯機置き場 / 温水洗浄機能付トイレ / CATV対応(要別途契約) / 光回線インターネット対応
備考
- 契約期間:普通賃貸借契約
- 更新料:新賃料の1ヶ月分相当額
- 保険料:22,000円(2年)
- 鍵交換代:27,500円
- 貸主指定の保証会社利用必須
【エポス】初回料:40%、月次:無、更新料:10000円/1年 or 14000円/1年
【JRAG】初回料:70%、月次:無、更新料:10000円/1年 - 退去時ルームクリーニング費借主負担有り
【清掃費】55,000円
【エアコン清掃費】1台あたり15,000円
- 契約時に賃料1ヶ月分相当金額(+消費税)の仲介手数料を申し受けます。
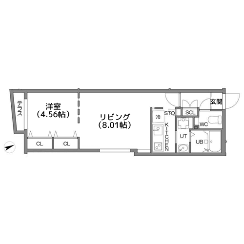
現在の空室・賃料・間取り
- 部屋番号
- 102号室
- 間取り
- 1LDK
- 専有面積
- 36.06㎡
- 賃料
- 162,000円
- 共益費・管理費
- 18,000円
- 敷金
- なし
- 礼金
- なし
- 入居時期
- 即入居可
間取り図

最終更新日:
次回更新:2026/2/6予定
※空き予定のお部屋につきましては、退去後のご案内となります。
※図面と現況が異なる場合は現況を優先させて頂きます。
※空室状況は変更になる場合がございます。あらかじめご了承ください。
室内イメージ写真
Aタイプ(1LDK 36.08㎡)のお部屋の写真となります。
Aタイプ - リビング

Aタイプ - リビング

Aタイプ - リビング

Aタイプ - キッチン

Aタイプ - キッチン

Aタイプ - 洋室

Aタイプ - 洋室

Aタイプ - 洋室

Aタイプ - 洋室・クローゼット

Aタイプ - 洗面台

Aタイプ - トイレ

Aタイプ - バスルーム

物件外観・共用部分
エントランスにオートロック、宅配ボックスが備わります。敷地内に専用ゴミ置き場が備わります。※エレベーターはありません。
マンション外観

マンション外観

エントランスアプローチ

マンション外観

エントランスオートロック

共用廊下(内廊下)

周辺環境
マンションから徒歩2分の場所に銭湯の効明泉があります。
祐天寺駅(徒歩5分)

祐天寺東急ストア(徒歩5分)

自然食品の店 F&F 祐天寺店(徒歩5分)

branch(南フランス家庭料理・徒歩3分)

エニタイムフィットネス 祐天寺店 / TSUTAYA(徒歩3分)

スギ薬局 祐天寺店(徒歩2分)

ウエルシア 目黒五本木店(徒歩1分)

スーパー三和 祐天寺店(徒歩1分)

モデュロール祐天寺の
お問い合わせ無料
ご見学は物件前から。ご契約まで来店は不要です。
お問合せフォーム
- 空室状況は日によって変わります。お問合せいただいた時点で空室を確認しておりますが、ご見学時に終了してしまう場合もございます。予めご了承ください。
- 契約時に賃料1ヶ月分相当金額(+消費税)の仲介手数料を申し受けます。
- 取引態様:媒介
- ※図面と現況が異なる場合、現況を優先とします。
- 当社は(Airbnbなどの)民泊に関するいかなるサービスも提供しておりません。当サイトでご紹介中の物件、お部屋についての民泊用途のお問い合わせにはお答えしかねますのでご了承ください。