CARITAS不動前
        一人暮らしにぴったり!ストレスフリーなシンプルルーム
東急目黒線 不動前駅徒歩6分の賃貸デザイナーズマンション「CARITAS不動前」。ホワイトとグレーの2トーンカラーの外観をしています。
地上5階建ての低層タイプの建物内に並ぶお部屋は全19戸。間取りタイプは一人暮らしにぴったりのコンパクトな1Rから、広さに余裕が欲しい方におすすめの1LDKまで。どのお部屋もバス・トイレが別で、小さめのタイプのお部屋にもしっかりとした独立洗面台が備わります。キッチンも2口以上のガスコンロが備わり、お料理好きの方にも対応します。
共用部はエントランスにオートロックが備わりセキュリティ面も安心です(お部屋に来訪者の姿を確認できるモニター付きインターホンが備わります)。周辺はマンションそばにコンビニが2店あるほか、徒歩圏内に大型スーパーがいくつもあり、暮らしやすい環境にあります。
物件概要
地図
- 設備
 - 
                オートロック / モニター付インターホン / 宅配ボックス / エレベーター / 駐輪場 / 敷地内専用ゴミ置き場 / 
ディンプルキーダブルロック / エアコン / 2口ガスコンロキッチン(1R住戸) / グリル付き3口ガスコンロキッチン(1LDK住戸) / 浴室乾燥機 / 独立洗面台 / 室内洗濯機置き場 / 温水洗浄機能付きトイレ / 地デジ/CS対応 / 光回線インターネット対応(CITV光に限り無料) 
備考
- 契約期間:普通借家契約2年
 - 更新料:新賃料の1ヶ月分相当額
 - 保険料:16,550円(2年)
 - 鍵交換代:44,000円
 - 貸主指定の保証会社利用必須
【レジデンシャルパートナーズ】保証料:賃料等の50%(最低2万)、月額保証・事務手数料:賃料等の1%(更新料無)
【オリコフォレントインシュア】保証料:賃料等の50%(最低2万)、月次保証料:賃料等の1%(更新料無)
【エルズサポート】保証料:賃料等の50%(最低2万)、月次保証料:賃料等の1%(更新料無) - 退去時ルームクリーニング費借主負担有り
【清掃費】44,000円
【エアコン清掃費】16,500円 
- 契約時に賃料1ヶ月分相当金額(+消費税)の仲介手数料を申し受けます。
 
現在の空室・賃料・間取り
- 部屋番号
 - 204号室(D)
 - 間取り
 - 1R
 - 専有面積
 - 20.29㎡
 - 賃料
 - 101,000円
 - 共益費・管理費
 - 4,000円
 - 敷金
 - 1ヶ月
 - 礼金
 - 1ヶ月
 - 入居時期
 - 12月中旬予定
 

最終更新日:
次回更新:2025/11/18予定
※空き予定のお部屋につきましては、退去後のご案内となります。
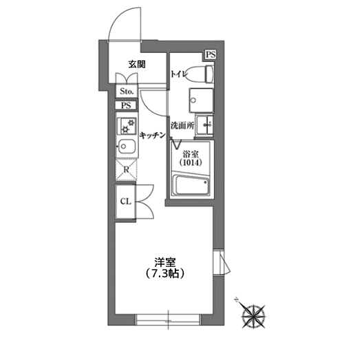
※図面と現況が異なる場合は現況を優先させて頂きます。
※空室状況は変更になる場合がございます。あらかじめご了承ください。
室内イメージ写真
Cタイプ(1R 20.18㎡)、Eタイプ(1LDK 39.18㎡)のお部屋の写真となります。お部屋によりフローリングカラーが異なることがあります。ご見学の際にご確認ください。
Cタイプ - 玄関

各部屋の玄関ドアにダブルロックが備わります

Cタイプ - 玄関・下足入れ

1Rタイプのキッチンは2口ガスコンロが備わります

Cタイプのお部屋は7.5帖とコンパクト

Cタイプ - 洋室

Cタイプ - 洗面室

洗面台の鏡の裏は小物が置ける収納棚になっています

周囲の掃除がしやすいタンクレスタイプのトイレ

シャワー派の人もお風呂派の人ものびのび使えるバスルーム

Eタイプ - リビング

Eタイプ - リビング

リビングは12.8帖の広さがあります

各部屋にモニター付きインターホンが備わります

Eタイプ - キッチン

1LDKタイプはグリル付き3口ガスコンロが備わります

Eタイプ - 洋室

洋室は4.9帖の広さ

Eタイプ - 洋室・クローゼット

Eタイプ - トイレ

Eタイプ - 洗面室

1LDKタイプのバスルームは1Rタイプより広め

物件外観・共用部分
エントランスにオートロック、宅配ボックスが備わります。共用部にエレベーター、敷地内に駐輪場、専用ゴミ置き場があります。
マンション外観

マンションは桐ヶ谷通り沿いにあります

マンション外観

エントランス

エントランスオートロック

宅配ボックス

エントランスホール

エレベーター

共用廊下(外廊下)

敷地内駐輪場

専用ゴミ置き場はマンションエントランス横にあります

周辺環境
マンションから徒歩1分の場所にファミリーマート 品川桐ヶ谷通り店、徒歩2分の場所にファミリーマート 小浦西五反田四丁目店があります。
不動前駅(徒歩6分)

BAKE SHOP 神戸屋 不動前店(徒歩6分)

東印度カレー商会(徒歩7分)

setsugetsuka OCEAN(イタリアン/ダイニングバー・徒歩7分)

珈琲モンド(喫茶店・徒歩6分)

マルエツプチ 不動前店(徒歩7分)

不動前東急ストア(徒歩8分)

エニタイムフィットネス 不動前店(徒歩9分)

オオゼキ 目黒不動前店(徒歩6分)

Pizzeria Vento e Mare(ピザ店・徒歩1分)

LIFE 武蔵小山店(徒歩6分)

武蔵小山温泉 清水湯(徒歩8分)

武蔵小山駅(徒歩10分)

五反田TOCビル(徒歩14分)

          CARITAS不動前の
お問い合わせ無料
        
        ご見学は物件前から。ご契約まで来店は不要です。
        お問合せフォーム
- 空室状況は日によって変わります。お問合せいただいた時点で空室を確認しておりますが、ご見学時に終了してしまう場合もございます。予めご了承ください。
 - 契約時に賃料1ヶ月分相当金額(+消費税)の仲介手数料を申し受けます。
 - 取引態様:媒介
 - ※図面と現況が異なる場合、現況を優先とします。
 - 当社は(Airbnbなどの)民泊に関するいかなるサービスも提供しておりません。当サイトでご紹介中の物件、お部屋についての民泊用途のお問い合わせにはお答えしかねますのでご了承ください。